studio4architects
HOME
PROJECTS / WORK
RESIDENTIAL
COMMERCIAL / EDUCATION
INDUSTRIAL
BERLIN OFFICE -PM + P
OTHER PROJECTS
ARCHITECTURE
CURRENT PROJECTS
CURRENT PROJECTS
PLANNING/URBANISM
PLANNING / URBANISM
PROJECT MANAGEMENT
PROJECT MANAGEMENT
INTERIOR DESIGN
INTERIOR DESIGN
DESIGN
ROCKER POP
DESIGN
COMPETITIONS
COMPETITIONS
RESEARCH / STUDIES
RESEARCH / STUDIES
STUDIO / TEAM
STUDIO 4 PROFILE
STUDIO 4 PROFILE
ARCHITECT / PLANNER SENIOR
ADMINISTRATOR
TECHNICAL
CIVIL / STRUCTURAL ENGINEER
ELECTRICAL / MECHANICAL ENGINEER
ENVIRONMENT CONSULTANT
LANDSCAPE ARCHITECT
ARCHITECTS
ADMINISTRATION
TEAM
TRAINING
TRAINING
CONTACT
Toggle navigation
studio4architects
HOME
PROJECTS / WORK
STUDIO / TEAM
CONTACT
PROJECTS / WORK
->
2006 Moorsom
2006 Moorsom
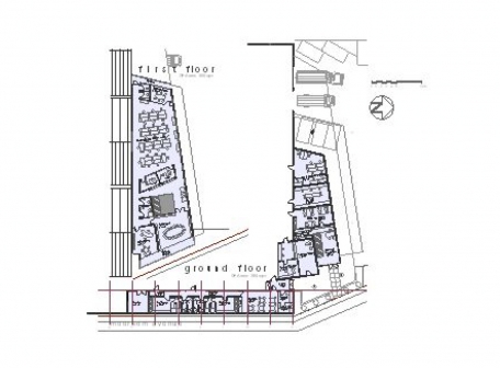
Project Scope:
Alterations and Additions to 21000 m2 Warehouse including Design of New Offices
Contract Scope:
Design, Working Drawings, Project Management
Description:
Warehouse, Moorsom Avenue, Epping Industrial, Cape Town
Back
Back to top
Website Links
PROJECTS / WORK
ARCHITECTURE
CURRENT PROJECTS
PLANNING / URBANISM
PROJECT MANAGEMENT
INTERIOR DESIGN
DESIGN
COMPETITIONS
RESEARCH / STUDIES
Events
Jan 2026
S
M
T
W
T
F
S
01
02
03
04
05
06
07
08
09
10
11
12
13
14
15
16
17
18
19
20
21
22
23
24
25
26
27
28
29
30
31